Конструювання залізобетонних конструкцій САПФІР-ЗБК
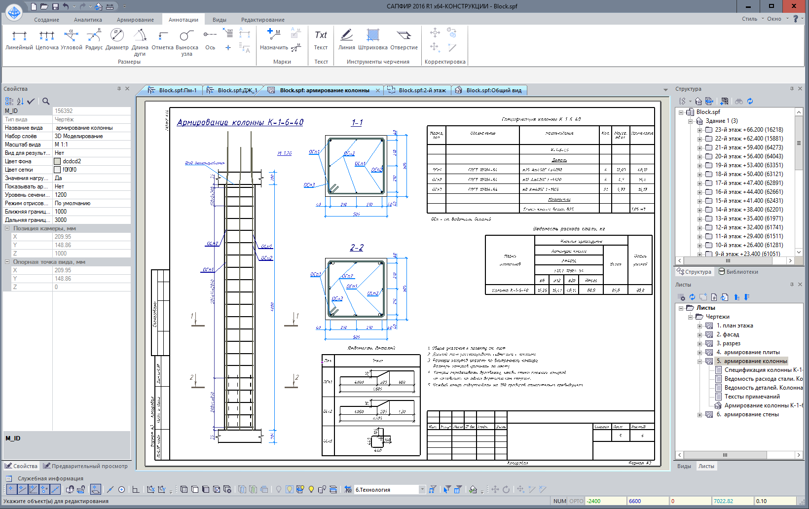
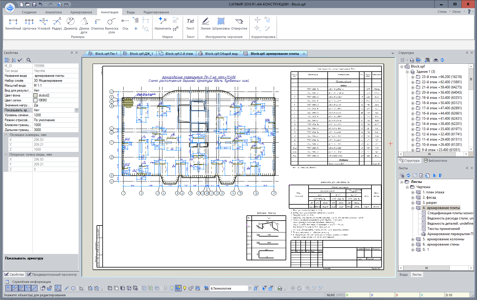
Система дозволяє виконати конструювання та отримати робочі креслення армування, специфікацію арматури, відомість витрат сталі та відомість деталей для плит перекриттів, діафрагм, колон та балок.
- Конструювання здійснюється в автоматизованому режимі інтерактивними графічними методами на основі результатів розрахунку армування, представлених у виді ізополів або мозаїк площі арматури.
- Забезпечується позначення основного (фонового) армування та ділянок розкладки стержнів додаткової арматури, із зазначенням їх параметрів, прив'язки та приміток, розрахунок анкерування та врахування перевитрати на перепуск.
САПФІР-ЗБК імпортує результати розрахунку армування з ПК ЛІРА-САПР і показує ізополя та мозаїки армування в якості фону для конструйованої плити перекриття. Здійснюється налаштування шкали представлення результатів та вибір основної арматури, при цьому автоматично змінюються плями ізополів. На фоні ізополів конструктор розміщує ділянки додаткового армування.
Програма дозволяє отримати картину недоармування плити у вигляді мозаїки. При графічному редагуванні додаткової арматури мозаїка недоармування змінюється.
Специфікація арматури
Специфікація арматури передбачає можливості уніфікації позицій, при цьому користувачеві повідомляється вартість кожного кроку уніфікації в сенсі перевитрати арматури.
Автоматично формуються листи креслень – схеми розташування арматури. На листі опціонно можуть бути додатково розміщені: специфікація арматури, відомість деталей, відомість витрати сталі.
Підсистема САПФІР-ЗБК повністю інтегрована в ПК САПФІР-3D, перехід до армування вказаної плити перекриття відбувається за натисканням однієї кнопки.

